
Derzeit begleite ich die Sanierung und den Umbau eines Reiheneckhauses mit Einliegerwohnung im Kölner Stadtteil Köln-Lindenthal, in unmittelbarer Nähe zum Uniklinikum Köln. Ziel der Planung ist es, die bestehende Gebäudestruktur funktional weiterzuentwickeln und die Wohnräume an die heutigen Bedürfnisse der Bauherrschaft anzupassen.
Im Rahmen der Entwurfsphase wurden mehrere Grundrissvarianten für das Erdgeschoss entwickelt. Diese Varianten dienen als Grundlage für die gemeinsame Entscheidungsfindung und ermöglichen es der Bauherrschaft, unterschiedliche räumliche Lösungen miteinander zu vergleichen und die für sie passende Struktur zu wählen.
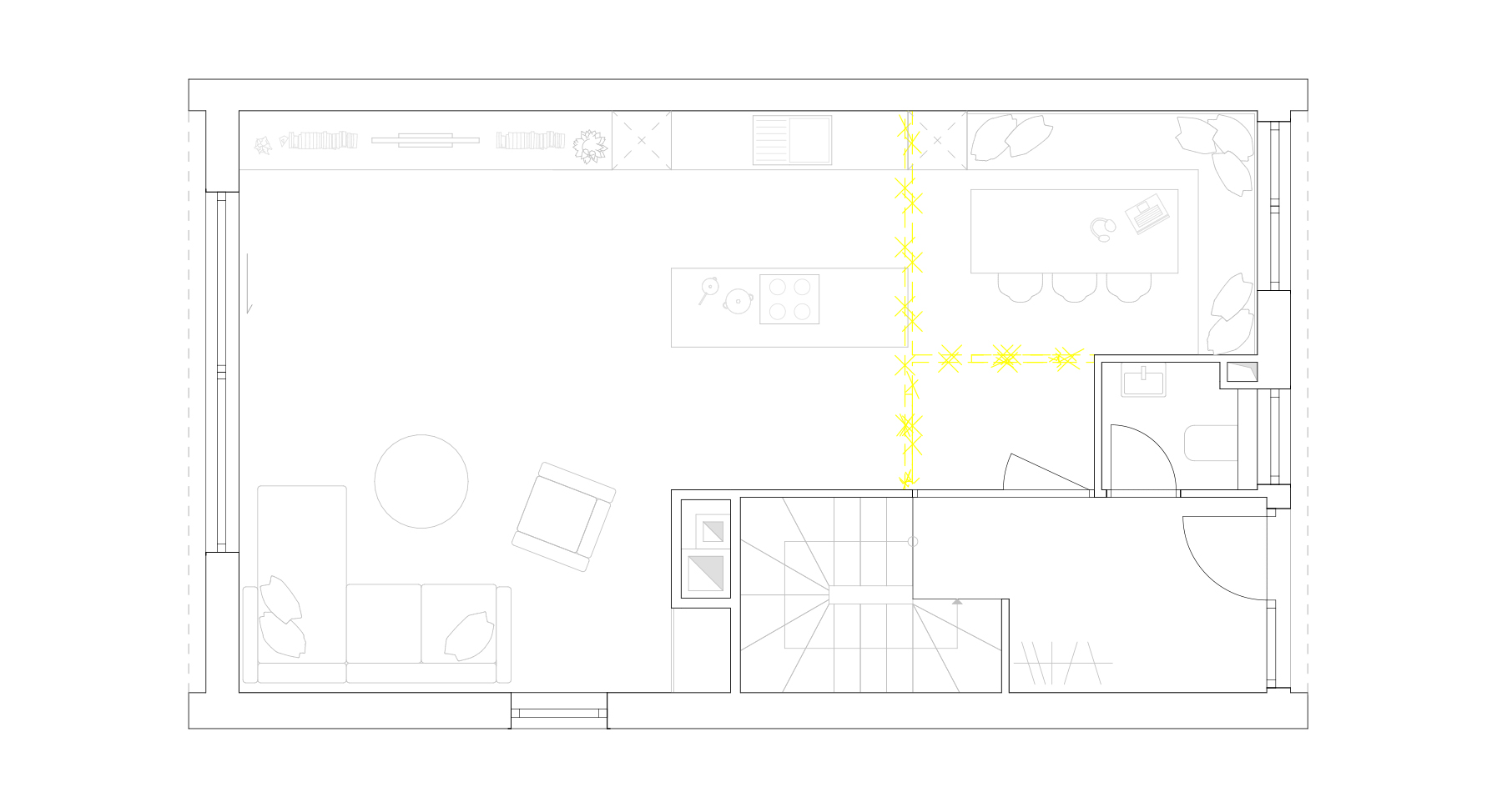
Ein zentraler Bestandteil der Planung ist die Öffnung des Erdgeschosses. Zwei nicht tragende Innenwände werden entfernt, wodurch ein großzügiger, zusammenhängender Küchen-, Ess- und Wohnbereich entsteht. Durch diese Neuorganisation der Räume wird das Erdgeschoss deutlich offener und heller und bildet künftig den Mittelpunkt des Familienlebens.
Das Gäste-WC bleibt an seinem bestehenden Standort erhalten und wird in die neue Raumstruktur integriert. Eine Lofttür im Übergang von Diele zum Wohnbereich schafft dabei eine klare räumliche Verbindung, ohne die einzelnen Bereiche vollständig voneinander zu trennen.



Im Zuge der Sanierung wird zudem die gesamte Haustechnik auf den aktuellen Stand der Technik gebracht. Der bestehende Estrich im Erdgeschoss wird eingefräst und mit einer nachträglichen Fußbodenheizung ausgestattet. Die vorhandene Gastherme wird durch eine moderne Wärmepumpe ersetzt, während gleichzeitig die Elektrik des Hauses vollständig erneuert wird. Ergänzend dazu wird die vorhandene Photovoltaikanlage mit einer smarten Steuerung an die Wärmepumpe gekoppelt, sodass eine möglichst effiziente Nutzung der selbst erzeugten Energie ermöglicht wird.
Begleitend zur Planung wurden Visualisierungen erstellt, die bereits einen ersten Eindruck des zukünftigen Raumgefüges vermitteln. Sie unterstützen den Austausch mit der Bauherrschaft und helfen dabei, die räumlichen Qualitäten der neuen Grundrisslösung frühzeitig erlebbar zu machen.
